
|
|
ТЕХНОЛОГИИ И ОБОРУДОВАНИЕ ДЛЯ ПЕРЕРАБОТКИ И УТИЛИЗАЦИИ ОСАДКОВ ПРОМЫШЛЕННЫХ И КОММУНАЛЬНЫХ СТОЧНЫХ ВОД
Коцарь Елена, к.т.н., с.н.с. НИЦ «Потенциал-4»,
Диренко Анна, аспирант КНУСА
04201, г.Киев, ул.Кондратюка1, корпус 5, к.18,
тел/факс 461-82-31, E-mail: potential4kiev@yahoo.com
Многие современные экологические проблемы возникают из-за локального накопления осадков, образующихся в процессах физико-химической и биологической очистки природных и сточных вод, так как количество образующихся в этих процессах осадков слишком велико для естественного процесса их биодеградации.
В большинстве современных работ по экологии предлагается для решения проблем обезвреживания твердых отходов, и в частности, осадков сточных вод использование процесса компостирования.
Компостирование, с одной стороны, позволяет получить ценный продукт, а с другой – является процессом очистки, делающим осадки хозяйственно-бытовых и близких по составу производственных сточных вод безопасными для окружающей среды. В процессе биодеградации отходов органический субстрат претерпевает физические и химические превращения с образованием компоста - стабильного гумифицированного конечного продукта. Гумифицированные продукты быстро приходят в равновесие с экосистемой, в которую их внесли, и не вызывают серьезных нарушений в ней, как это бывает при внесении непереработанных отходов. Компост представляет ценность как органическое удобрение и как средство, улучшающее структуру почвы [1].
Целью настоящей работы была разработка технологии получения компоста из осадков, образующихся в процессах очистки сточных вод.
Объектом исследований являлись обезвоженные аэробно стабилизированные осадки от канализационных насосных станций со встроенными блоками очистки сточных вод (КНС с ВБО) завода по переработке семян подсолнечника, фабрики чипсов, мясоперерабатывающего предприятия, хозяйственно-бытовых сточных вод, загрязненных дождевых вод и сточных вод от мойки различных видов транспорта.
Исследовались также осадки станции нейтрализации производственных сточных вод пивоваренного завода, предприятия по производству химволокна.
На заводе по переработке семян подсолнечника осадки образуются при процеживании дождевых и хозяйственно-бытовых сточных вод в смеси с производственными, при их физико-химической обработке во флотационных установках ФЛОКФИЛ, а также при аэробной стабилизации избыточного активного ила аэротенков и биомассы прикрепленных микроорганизмов из биофильтров и биореакторов. Все осадки, за исключением песка и других механических примесей с крупностью фракций более 0,5 мм, задерживаемых на процеживателях и удаляемых непосредственно в бункер для обезвоженного осадка через фильтрующие полипропиленовые мешки, проходят аэробную стабилизацию.
В аэробном стабилизаторе осадка предусмотрено насыщение иловодяной осадочной смеси кислородом воздуха через аэрационные трубы (аэраторы) для аэробного окисления органических примесей с целью ускорения минерализации осадка.
Аэробно стабилизированный осадок подвергается механическому обезвоживанию до влажности 60-70% в декантерных центрифугах фирмы ВЕСТФАЛИЯ СЕПАРАТОР (Германия). Для улучшения процесса водоотдачи осадка используется флокулянт фирмы НАЛКО. Технологическая схема механического обезвоживания осадка приведена на рисунке 1.
Аналогичная схема аэробной стабилизации осадка и его механического обезвоживания применена на фабрике чипсов и ряде мясоперерабатывающих предприятий. На этих предприятиях установлены декантерные центрифуги фирмы БАРГАМ (Италия), показавшие высокую эффективность и более низкую энергоемкость, и используются флокулянты фирмы СИБА.
На заводе химволокна проведены опытно-производственные исследования по механическому обезвоживанию осадка производственных сточных вод из шламонакопителей на декантерных центрифугах фирмы БАРГАМ (Италия) с использованием флокулянта фирмы НАЛКО.

Рис. 1. Технологическая схема переработки и утилизации осадков, образующихся в процессах очистки промышленных и коммунальных сточных вод
1 – аэробный стабилизатор осадка, 1-1 – насос погружной (Фаджолати, Италия), 1-2 – аэратор, 2 – двухкамерная установка приготовления и дозирования флокулянта, 2-1 – электромешалка, 2-2 – насос подачи концентрата флокулянта в расходную камеру, 2-3 – насос подачи рабочего раствора флокулянта (Этатрон, Италия), 3 – декантерная центрифуга (Баргам, Италия), 4 – воздуходувка (Беккер, Германия), 5-1, 5-2, 5-3, 5-4 – траншеи компостирования (Потенциал-4, Украина)
Нефтесодержащие осадки, образующиеся при очистке дождевых вод и возвратных вод от мойки транспорта (в автоцентрах, АЗС, СТО и прочих предприятиях), проходят аэробную стабилизацию с добавлением отечественного биопрепарата “Эконадин”. Вывоз стабилизированного обезвоженного в фильтрующих контейнерах осадка, обработанного отечественным биопрепаратом, содержащим микроорганизмы-биодеструкторы масел и нефтепродуктов, осуществляется в траншеи для его компостирования (перед использованием в качестве удобрения). Качественный состав различных типов стабилизированного осадка, полученного в процессе эксплуатации КНС с ВБО, приведен в таблице.
Таблица. Качественный состав различных типов стабилизированного осадка, полученного в процессе эксплуатации сооружений механического и гравитационного обезвоживания аэробно стабилизированного осадка
Наименование вида осадка
Наименование показателя качества осадка
Влаж-ность,%
Жиры (нефте-прод.) мг/кг
Сухой остаток, мг/кг
Яйца геогель-минтов
Железо, мг/кг осадка
Свинец, мг/кг осадка
Цинк, мг/кг осадка
Класс опас- ности
Осадок КНС с ВБО сточных вод завода по переработке семян подсолнечника
60
18,5
318400
Не обн
97,4
1,86
18,9
IV
Осадок КНС с ВБО произв. сточных вод пивоваренного завода
78
7,75
168200
Не обн
20,5
1,81
53,07
IV
Осадок КНС с ВБО сточных вод фабрики чипсов
60
28,8 (1,0)
348600
Не обн
89,9
1,63
34,4
IV
Осадок КНС с ВБО дождевых и моечных сточных вод автоцентра ВОЛЬВО
72
Отс (9,8)
262100
Не обн
112,0
2,11
26,8
IV
Осадок шламонакопителей завода химволокна
86
Отс.
109200
Не обн
1800
110
52800
IV
Осадок КНС с ВБО сточных вод мясо-перерабатывающего предприятия
70
35,0 (1,2)
202300
Не обн
12
1,96
14,9
IV
Как видно из таблицы, все виды стабилизированного обезвоженного осадка относятся к IV классу опасности, осадки имеют незначительные различия (отличаются в основном содержанием масел и нефтепродуктов, тяжелых металлов).
Компостирование представляет собой процесс, протекающий благодаря активности сообщества организмов различных групп. Перечень основных групп организмов, участвующих в процессе компостирования: - микрофлора (бактерии - кокки, палочки, нитчатые), актиномицеты, образующие тонкий разветвленный мицелий (растущие предпочтительно при повышенной температуре, пониженной влажности), грибы, дрожжи (множество видов, наибольшее значение их которых имеют термофилы), водоросли (предпочитают влажные условия), вирусы (живут на организмах-хозяевах: бактериях или актиномицетах), простейшие (подвижные одноклеточные), высшие грибы, представители макрофауны (многоножки, клещи, черви, термиты, жуки, пауки).
В процессе компостирования принимает участие более 2000 видов бактерий и не менее 50 видов грибов.
Микробная активность возрастает, когда содержание влаги и концентрация свободного или связанного кислорода достигают необходимого уровня, а также при дополнительном введении специфических биоценозов микроорганизмов-биодеструкторов органических веществ, поэтому нами рекомендовано внесение при компостировании отечественных биопрепаратов (например, ТРОФОЙЛА, ЭКОНАДИНА и пр.). Кроме кислорода и воды, микроорганизмы для роста и размножения нуждаются в источниках углерода, азота, фосфора, калия и определенных микроэлементов. Эти потребности в основном обеспечиваются веществами, содержащимися в отходах. Так как важными параметрами процесса компостирования являются соотношение углерода и азота и мультидисперсность субстрата, необходимая для повышения скорости реакции биодеструкции отходов сточных вод, а механически обезвоженный стабилизированный осадок КНС с ВБО имеет низкое отношение углерода к азоту, его рекомендовано смешивать с твердым материалом, сорбирующим влагу, который обеспечит дополнительный углерод и нужную для процессов биодеструкции структуру смеси.
Потребляя органические отходы как пищевой субстрат, микроорганизмы размножаются и продуцируют воду, диоксид углерода, биомассу (органические соединения биогумуса) и энергию. Часть энергии, получающейся при биологическом окислении углерода, расходуется в метаболических процессах, остальная выделяется в виде теплоты, ускоряя реакции образования гумуса.
Конечный продукт – компост содержит наиболее стабильные органические соединения, минеральные продукты распада основной массы органических соединений, биогумус, некоторое количество живых микроорганизмов и продукты химического взаимодействия этих компонентов.
Оптимальные значения важнейших параметров процесса компостирования:
Отношение С/N в субстрате - от 25/1 до 30/1, размер частиц - не более 12 мм для систем с перемешиванием и принудительной аэрацией , не более 50 мм для компостных траншей без принудительной аэрации, влажность - 50-60%, свободный объем около 30%, температура - 45 – 55°С, размеры загрузки - любая длина, высота 1,5 м, ширина до 2,5м для куч и компостных рядов с естественной аэрацией.
На основании исследований предложена методика расчета траншей для компостирования осадка. Объем одной секции траншеи рассчитывается с учетом поступающего от КНС обезвоженного осадка для приготовления компоста годового количества земли (грунта) и других наполнителей (торф, солома, листва и пр.).
Согласно требований СНиП 2.04.03-85, п.6.403, соотношение компонентов смеси обезвоженных осадков сточных вод и вышеуказанных наполнителей должно приближаться к 1:1 по объему с получением смеси влажностью не более 60%.
Принята максимальная длительность процесса компостирования осадка равной 12 месяцев, исходя из условия полной дегельминтизации компостируемого осадка при деструкции органических примесей, содержащихся в осадках.
Учитывая период компостирования 12 месяцев, общее количество секций траншей рекомендовано не менее 4-х. При этом первая секция траншей принимает осадок в течение первого полугодия и после этого в течение года находится в состоянии технологического процесса компостирования, вторая секция обеспечивает прием на компостирование осадка в течение второго полугодия и после этого в течение года находится также в состоянии технологического процесса компостирования. Третья секция траншеи начинает принимать осадок через год после начала эксплуатации участка компостирования, за полгода она заполняется и в течение последующего года находится в состоянии технологического процесса компостирования. Четвертая секция частично загружается наполнителем (грунтом, листвой, торфом) для использования наполнителя при приготовлении компоста, оставаясь резервной. Таким образом, каждые полгода одна секция траншеи оказывается свободной от наполнителя и осадка и является резервной.
Процесс компостирования предполагается осуществлять на огражденной площадке с использованием средств механизации в траншеях глубиной не менее 2,5 м, днище и стены которых выполнены из гидроизолирующего материала, например, железобетона (п.6.404 СНиП 2.04.03-85).
В процессе компостирования предусмотрено перемешивание обезвоженного осадка с грунтом (листвой, торфом). Хранение полученного компоста осуществляется в траншеях для компостирования, из которых компост автотранспортом с использованием погрузчика будет транспортироваться в места, предназначенные для удобрения лесопосадок.
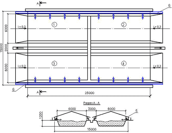
В качестве примера приводятся инженерные решения по компостированию осадка завода по переработке семян подсолнечника, которыми предусмотрено для получения компоста из обезвоженного осадка строительство двух двухсекционных траншей из монолитного железобетона с размерами в плане 26х 6,25 м (рис. 2).

Рис. 2. Схема площадки компостирования обезвоженного осадка
производительностью 200 м3/год осадка 70 % влажности.
1, 2, 3, - траншеи для заполнения обезвоженным осадком в смеси с торфом (грунтом) и биопрепаратом «Эконадин», 4 – резервная траншея для торфа (грунта), 5 – навес для защиты компоста от атмосферных осадков, 6 – система увлажнения компоста.
Каждая траншея разделена поперечной перегородкой на две равные секции (всего 4 секции) и имеет бетонные ограждения, препятствующие попаданию перерабатываемого в компост осадка за пределы траншеи, имеет навес для защиты компостируемого осадка от дождя оснащена системой увлажнения компоста. Дно и стены траншей выполнены из железобетона. Расчетный объем загрузки каждой секции траншеи - 140,0 м3. Общий объем четырех секций 560,0 м3, при этом максимальное количество осадка 65% влажности, подлежащего компостированию, не должно превышать 400 куб.метров в год. Для проведения погрузочно-разгрузочных работ все секции траншей имеют уклоны для спуска техники.
Площадка с траншеями для компостирования обезвоженного осадка ограждена и имеет ворота для въезда автотранспорта и других технологических машин (тракторов, бульдозеров и пр.). Ее размещение на ситуационном плане учитывает требования к устройству санитарно защитной зоны (СЗЗ).
Технология компостирования осадка и его использования в качестве удобрения предусматривает транспортирование образующегося при работе КНС со встроенным блоком очистки обезвоженный осадок до площадки участка с траншеями для его компостирования автотранспортом, обеспечивающим герметичность и исключающим возможность потерь осадка по пути следования. Выгрузка осадка в одну из секций траншей производится от задней перегородки слоем 60-65 см, после чего его присыпают наполнителем (землей, торфом, листвой). Слой наполнителя должен быть не менее 25-30 см сверху и по бокам для обеспечения процесса дальнейшего компостирования. Завершающий верхний слой осадка покрывается слоем наполнителя толщиной не менее 30 см. После засыпки 1 секции траншеи расчетным количеством осадка и наполнителя (верхний слой представлен наполнителем) приступают к загрузке третьей секции траншеи, проводимой по вышеуказанной технологии.
Выгрузка компоста из рабочих секций траншей производится с помощью экскаватора на самосвал через 11-12 месяцев после даты последней загрузки обезвоженного осадка в секцию траншеи при достижении полной готовности компоста (это время с избытком позволяет завершить процессы деструкции жиров, нефтепродуктов и дегельминтизации осадка ).
При необходимости повысить ценность компоста в обезвоженный осадок перед компостированием можно добавить минеральные удобрения - суперфосфат или фосфористую муку ( из расчета 1,5-2,0 % от массы компоста). К компосту также рекомендуется добавлять известь или мел в количестве 2-3% от массы компостируемого материала.
Так как с помощью хорошо отработанных технологий готовый компост представляет собой в первую очередь средство для улучшения структуры почвы и, в некоторой степени, удобрение, он может быть использован для удобрения лесопарков, лесных массивов, участков для выращивания декоративных насаждений. При добавлении компоста в почву компост разрушается, выделяя основные питательные вещества для растений - N, Р, К, микроэлементы. Клейкие вещества, а также мицелий грибов и актиномицетов способствуют агрегированию частиц почвы, органические компоненты компоста увеличивают ее способность удерживать влагу. Эти факторы значительно повышают устойчивость почвы к ветровой и почвенной эрозии. Добавление компоста в любых количествах практически безвредно, если в нем не присутствуют в большом количестве тяжелые металлы. В умеренном климате органические вещества, внесенные в почву, разрушаются за несколько лет, следовательно, компост можно добавлять каждые 2 года.
Гигиенические исследования осадков хозяйственно-бытовых и близких по составу городских и производственных сточных вод, а также полученного из них компоста, выполненные в Институте гигиены и медицинской экологии Украины, подтвердили их санитарно-эпидемиологическую безопасность, высокую удобрительную ценность и позволили рекомендовать эти продукты для удобрения почв под лесопосадка. Посадки декоративных кустарников, технические культуры, при соблюдении соответствующих агротехнических мероприятий.
Список литературы:
1. Биотехнология переработки органических отходов и экология / И.И. Гудилин, А.Ф. Кондратов, А.А. Чичин и др. — Новосибирск: Кн. изд-во, 1999. — 391 с
2. Куфтов А.Ф., Девисилов В.А., Котельников Ю.В. Переработка отходов птицеводства, животноводства и осадков городских сточных вод // Экология и промышленность России. — 1998. — с. 16—23.
3. Planenkompostierung - Kompostierung unter semipermeable Planenabdeckungen. Kuhner Michael. Bioabfallkompostierung: Neue Entwicklungen und Losungsmoglichkeiten zur Reduzierung von Geruchsemissionen. Wiesbaden:Hess. Landesamt Umwelt und Geol. 2001, с. 29–37.








